In an increasingly competitive F&B market, creating a distinctive restaurant space is not only a way to attract customers but also a crucial factor in building a sustainable brand. The design project of The Gangs Airport Restaurant in Go Vap stands as a clear example of how to fully leverage site potential while combining it with a unique concept to create a truly differentiated dining destination. Let’s explore this remarkable project in detail below.
1. Project Background and the Investor’s Vision
The Gangs, a restaurant brand that has firmly established its presence in Saigon’s central districts, decided to expand into Go Vap, a market considered highly potential yet equally challenging. While previous branches benefited from prime locations, convenient transportation, and a loyal customer base, conquering The Gangs Airport required an entirely different design strategy.

Despite the lower average spending level compared to central districts, the investor was determined to maintain the spirit of “Unlimited Gangsta.” The brief was clear: the space had to be on par with or exceed existing branches while expressing a distinct identity suited to the new location.
2. Site Analysis
2.1. Overall Site Overview
The selected site for The Gangs Airport boasts a total area of 2,100 m², including an existing two-story building of approximately 500 m² and a spacious 1,600 m² garden area. This provided an ideal foundation for developing an outdoor restaurant model that strongly reflects The Gangs’ identity.

2.2. Outstanding Advantages for The Gangs Airport Design
Strategic Traffic Location
Located at one of the busiest five-way intersections in Go Vap District, the restaurant benefits from heavy daily traffic flow. A wide sidewalk and a recessed façade create a spacious frontage, ideal for designing a striking brand entrance that easily captures the attention of passersby.

Favorable Surroundings
The surrounding area mainly consists of commercial and service buildings with few residential houses. This offers a major advantage for an outdoor restaurant model with high-volume music in the evenings. The open façade design enhances visibility from multiple directions, including the nearby overpass.
Existing Building Conditions
The two-story building with a rooftop, each floor measuring approximately 400 m², sits at the center of a 1,600 m² plot surrounded by greenery and perimeter walls. This setting presents an ideal canvas for any designer developing a concept for The Gangs.

2.3. Challenges to Overcome
Height Restrictions Due to Airport Regulations
The biggest challenge of the project lies in its proximity to Tan Son Nhat Airport, requiring strict compliance with height limitation regulations.
Technical System Constraints
The existing building lacked detailed drawings for water supply, drainage, and wastewater treatment systems. This posed a complex challenge for the construction team, demanding experience and creative solutions to ensure smooth operation without compromising the overall design.
3. When the Airport Becomes the Design Inspiration
The site’s proximity to Tan Son Nhat Airport was not merely a geographic characteristic but became the core inspiration for the entire project. The signature industrial style of The Gangs was cleverly blended with aviation and airport-related elements, creating a space that feels both familiar and refreshingly new.

The name “The Gangs Airport” is more than a reference to location; it is a bold design statement. Every detail, from the façade to the interior, is infused with this concept, delivering a cohesive and memorable customer experience.
4. Spatial Layout Solutions
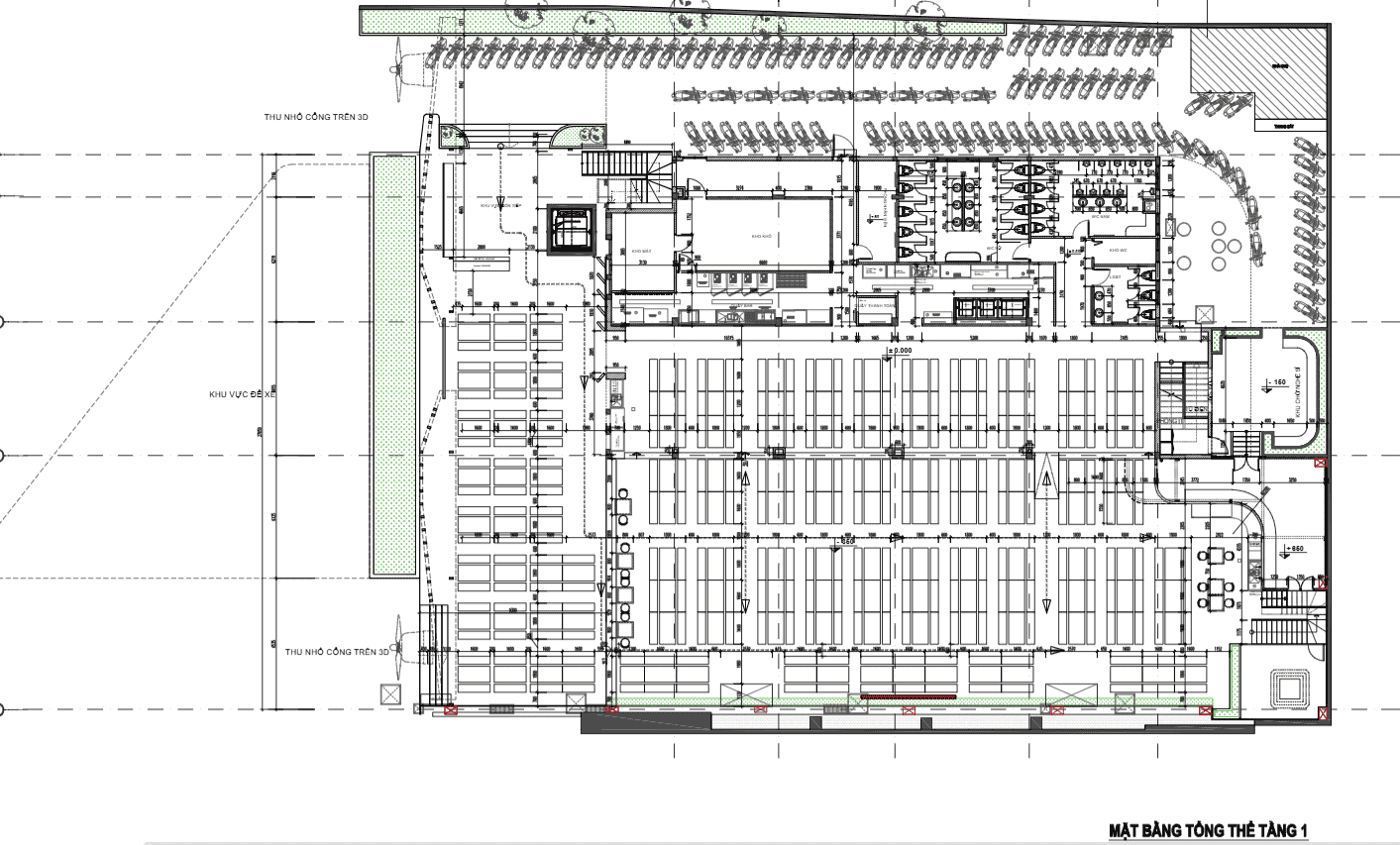
4.1. Ground Floor: 740 m²
The ground floor serves as the main operational space, designed to accommodate over 700 guests simultaneously. The layout is organized with clearly defined functional zones:
Main Outdoor Area
A vast open space acts as the heart of the restaurant, where most activities take place. This area serves as a “stage” for customers to socialize, express themselves, and enjoy music. The open design creates a sense of openness and connection with nature.



Bar Counter and Cashier
Located along the building façade, the long bar counter acts as a visual focal point while efficiently serving large guest volumes. Its placement was carefully calculated to ensure visibility without obstructing circulation.

Supporting Facilities
Inside the ground-floor building are essential functional areas, including:
-
Two storage rooms (dry and cold storage)
-
Staff areas
-
Modern restroom system (Male, Female, and LGBT-friendly restrooms)
-
DJ booth and one artist room


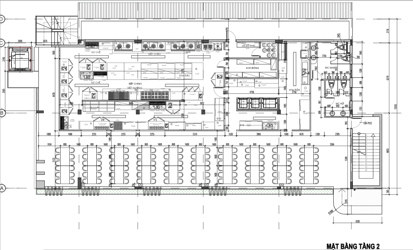
4.2. Second Floor: 520 m²
The second floor is designed with high flexibility, serving approximately 120 guests with the potential for expansion. Three staircases ensure smooth and safe circulation during peak hours.

The kitchen is located on the second floor with a well-optimized area and fully equipped with modern appliances, ensuring food quality while minimizing heat and odor impact on guest areas.

Along the outdoor corridor of the second floor, seating is arranged so guests can enjoy food and drinks while overlooking the vibrant activities below on the ground floor.


4.3. Total Capacity
With this scale, The Gangs Airport can accommodate over 830 guests simultaneously, clearly reflecting the investor’s ambition to create the largest F&B destination within the brand’s ecosystem.

5. Façade Highlight with the Airplane Wing Icon
5.1. Concept Inspired by Location
The façade of The Gangs Airport is not merely an entrance but a piece of architectural storytelling. Inspired by its proximity to the airport and the rooftop view of landing airplanes, the entrance gate is designed to resemble the form of an aircraft during descent.

5.2. Façade Design Details
Airplane Wing Imagery
Sharp, powerful lines of airplane wings are recreated using industrial-style metal structures. This design not only captures attention but also adds visual depth, making it impossible for passersby to ignore.


Sun Circle Motif
At the center of the entrance is a circular element symbolizing the sun, representing energy, vitality, and positivity. Combined with lighting effects, it becomes a striking focal point at night.
6. Interior Materials
6.1. Furniture Made from American Pine Wood
At first glance, the furniture at The Gangs Airport appears simple and understated, but this simplicity is intentional. American pine wood was chosen for its exceptional load-bearing capacity, capable of supporting 6–8 people standing and dancing simultaneously without deformation.


This is a crucial differentiator for a high-interaction restaurant model. While other venues may use cheaper alternatives with similar appearances, The Gangs invests in quality to ensure safety and superior customer experience. The minimalist design aligns with the industrial style while allowing easy maintenance and flexible arrangement for events.

6.2. Decorative Elements
Steel and Perforated Metal
These materials are the soul of industrial design. Steel conveys strength and masculinity, while perforated metal adds visual interest and ventilation, creating dynamic light and shadow effects.

Rust-Effect Paint
This technique creates a vintage, aged appearance on metal surfaces without compromising durability, adding depth, character, and a sense of storytelling to the space.
Exposed Concrete
Exposed concrete is a hallmark of industrial design. At The Gangs Airport, concrete surfaces are left raw, showcasing natural textures that contrast beautifully with other materials.

Greenery
Amidst steel and concrete, greenery becomes a lively visual highlight and has evolved into a signature element of the brand.

7. Color Palette and Lighting
7.1. Dominant Color Tone: Rusty Brown-Orange
The color palette revolves around a rusty brown-orange tone, a smart choice that complements both industrial aesthetics and dining experiences. This palette is consistently applied across the façade, interior, and decorative details to maintain visual coherence.

7.2. Lighting System
As the restaurant primarily operates at night, significant investment was made in lighting design. A variety of lighting fixtures were selected to create visual richness while staying true to the industrial style.
A signature feature of The Gangs is its energetic nightlife atmosphere. Dynamic and flashing lights are incorporated not just for decoration but to enhance DJ performances and nighttime events.

The design project of The Gangs Airport Restaurant in Go Vap is a vivid demonstration of how a strong concept, when executed correctly, can transform a challenging location into a magnetic destination. This project proves that with the right vision, a professional design team, and thoughtful investment, an F&B space can become not only a customer magnet but also a regional icon.
Looking for a Design Partner for Your Restaurant Project?
Contact KenDesign for in-depth consultation on design solutions tailored to your business model, budget, and brand vision. With extensive experience in large-scale projects like The Gangs Airport, we are committed to delivering spaces that are not only visually striking but also operationally efficient and profit-driven.
Contact us today though fanpage Nội thất KenDesign to receive:
-
Free concept design consultation
-
Detailed cost estimation and project timeline
-
Portfolio of similar completed projects
-
Site visits to completed works
Don’t let your ideas remain on paper. Turn them into reality with a team of experienced design professionals.






